Sean Na / MaxWell Canyon Creek

7425 20 Street SE, Townhouse for sale in Ogden Calgary , Alberta , T2C0P9

 MLS® # A2267502

0 bathrooms

4,660 sqft

Sign up to View

Days on Market

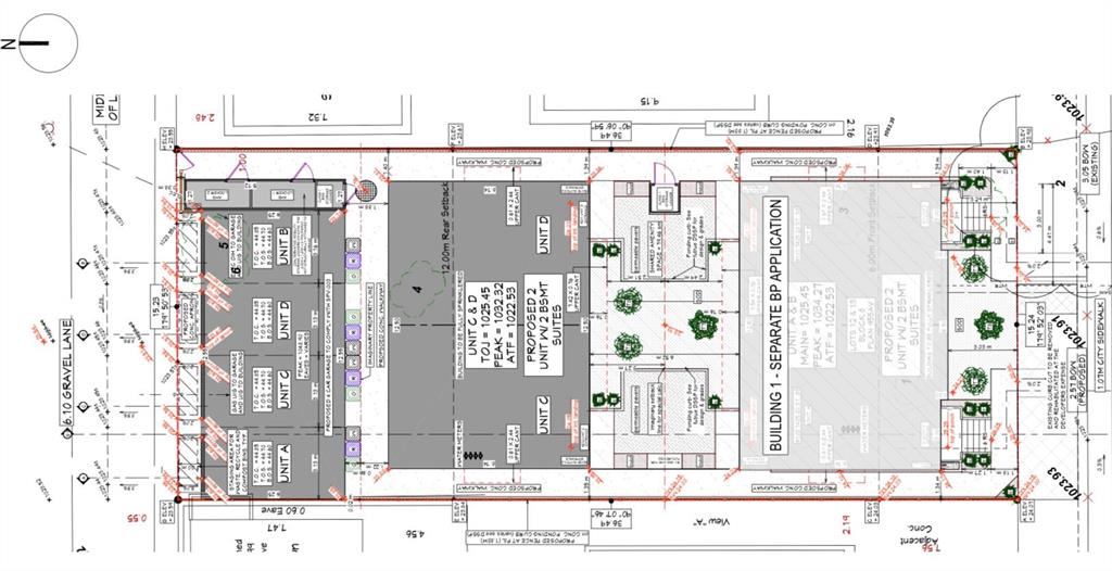
A rare opportunity to acquire a brand-new 4-plex with 4 legal basement suites — a total of 8 fully self-contained rental units complete with 4 single garages — delivering exceptional income potential and long-term stability for any investor. Each basement suite features its own private entrance and a spacious 1-bedroom layout, maximizing privacy, tenant demand, and leasing flexibility. Designed with modern architecture and quality finishes throughout, this project stands out as one of the most attractive mu...

Read More

Essential Information

  • MLS® #
    A2267502
  • Year Built
    2026
  • Property Type
    4 plex
  • MLS® #
    A2267502
  • Year Built
    2026
  • Property Type
    4 plex
  • MLS® #
    A2267502
  • Year Built
    2026
  • Property Type
    4 plex

Community Information

  • Postal Code
    T2C0P9
  • Postal Code
    T2C0P9
  • Postal Code
    T2C0P9

Additional Details

  • Zoning
    R-CG
  • Zoning
    R-CG
  • Zoning
    R-CG

$2,690,000

7425 20 Street SE

Schedule Tour
Contact Agent

$12250/month
Est. Monthly Payment
$
$
%
Learn More